Autres aménagements disponibles,
garage vendu séparément.
R-de-C
621 Pi²
1
e
ÉTAGE
621 Pi²
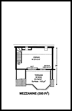
MEZZANINE
350 Pi²
NV-08 - COTTAGE
5 ½ - 1, 592 Pi²
Condominium - St-Michel
Condominium - Cours Versailles